

▲?主卫,灰色地砖搭配水泥灰墙砖,原木与大理石纹的台盆柜底部架空,淋浴区导流槽设计,黑色五金彰显个性
? ?建筑面积119平,使用面积89平,总造价30万,项目坐标:长沙。本案原格局硬伤多,处处都显狭小闭塞,经过与业主多次沟通讨论,抓住“多收纳”,“少装饰”的重点,对房子的布局进行优化,做大量柜子。下面就和小编一起来看看这个家吧,希望大家喜欢~
▲?厨房,向公卫借空间增加料理台面和橱柜,打掉与生活阳台之间的门窗,增加采光面积
▲?床侧和床尾的收纳系统满足卧室储物需求,让房间更加整洁
▲?书房延续原木日式风,这里平时作为业主的游戏区使用,偶尔客人小住的时候,可以转换为客房
▲?餐厅,原木餐桌一边靠近柜体摆放,餐椅加长凳更实用,这样过道足够宽敞,左侧又可增加收纳置物柜
▲?阳台作休闲办公区,另一侧增加一个储物间

▲?餐厅沿墙做一组餐边柜,白色的柜子与墙面一体,弱化存在感


▲?床头壁灯营造温馨氛围

▲?客厅纳入阳台,获得开阔视野与充足采光,无主灯设计简洁不影响层高




▲?主卧,地板和家居都是以原木为主,大白墙顶造型简洁清爽,选择点光源取代主灯
▲?客厅电视背景墙的隐形门后面是主卧,背景墙右侧的展示柜收藏业主喜欢的手办
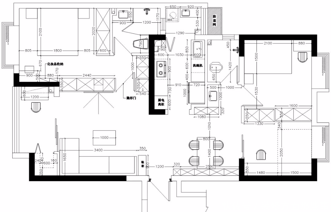
▲?平面布置图

▲?客卫干湿分离,提高使用效率


▲?客厅望向餐厅视角
▲?餐区望向客厅、阳台
▲?原本进门无玄关,改造后入户左侧放成品鞋柜,右边一组高柜作为收纳补充
▲?灰色简约款沙发搭配白墙,麻编地毯的色彩与装饰画形成呼应,增加些许暖色调



文章来源:《建筑与装饰》 网址: http://www.jzyzszzs.cn/zonghexinwen/2022/0815/2660.html
建筑与装饰投稿 | 建筑与装饰编辑部| 建筑与装饰版面费 | 建筑与装饰论文发表 | 建筑与装饰最新目录
Copyright © 2021 《建筑与装饰》杂志社 版权所有 Power by DedeCms
投稿电话: 投稿邮箱: